
今回紹介する物件は弊社近くの住宅用地。
京王井の頭線の久我山駅から歩いて約14分、ほどよいのどかさと利便性を兼ね備えた場所にあります。




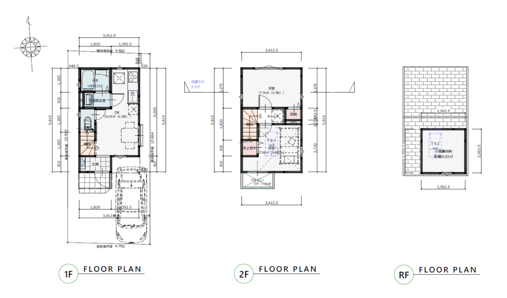
面積は51.12㎡(15.46坪)、南向きで日が当たりやすい整形地です。
目の前は私道で、いわゆる位置指定道路と呼ばれる開発道路です。
もちろん道路持分があり、日常の通行、管理、改良を可能とする通行掘削承諾書も準備されています。
そのため道路は支障なく利用できます。


建物プランも用意されています。
2DK車庫付きで延床面積38.91㎡(11.74坪)、建築費1,830万円です。
この1,830万円には
- 建築費本体
- 設計料
- 地盤補強工事費
- 外構工事費
- 上下水管取換工事費
を含んでいます。これら込みで坪単価約156万円ですから、かなりの販売努力が感じられます。


項目ごとの見積書も参照可能です。
なお、構造計算や役所調査前の段階なので、若干のプラン変更がありうることをご了承ください。


近くを歩いてみました。するとこんな表示に遭遇。
イチゴの自動販売機です!
実際に機械をのぞいてみると……


ちゃんとイチゴが入っていましたよ(当然ですが)。どれもおいしそうです(#^.^#)
取材時はこのあと用事があったので、残念ながらお持ち帰りはできず。今度味わうことができればこの記事にレポートを追加します!
この物件がある三鷹市は農業が盛んな地域。野菜や果物の直売所が至る所にあります。
自動販売機前の道路は東八道路といい、同じ道沿いにブルーベリー園、有機農場、花と緑の広場などが並びます。いずれも物件から徒歩6分圏内。近くで大地の恵みにふれあえるのはうれしいことですね(*'▽')
この東八道路沿いには生活施設も林立。西へ進めば、むさしの森珈琲(約450m)、業務スーパー(約600m)、はま寿司(約900m)などがあります。
かたや東に向かえば、セブンイレブン(約300m)。そのまま久我山駅方面の人見街道に入ると、まいばすけっと(約400m)も利用できます。
スーパーマーケットはサミットストア2店舗が1km圏内にあるほか、さえき(約750m)、24時間営業の西友(約1.5km)など、上記業務スーパーと合わせて強力な布陣です!
久我山駅から本物件へ向かう途中に弊社事務所があります。お気軽にお問い合わせください(^^)
三鷹市牟礼 土地 2,480万円
- 所在:東京都三鷹市牟礼1丁目
- 交通:京王井の頭線「久我山」駅より約1.4km
- 面積:51.12㎡(15.46坪)※他に私道持分あり
- 地目:宅地
- 地勢:平坦地
- 用途地域:第一種低層住居専用地域
- 建ぺい率:40%
- 容積率:80%
- 防火指定:法22条区域
- 権利:所有権
- 道路:南側が幅約4mの舗装私道に接面
- 設備:電気、公営水道引込可、本下水利用可、都市ガス
- 販売態様:媒介
《お問い合わせ先》
あの日不動産
電話 050-8882-6889
メール info★anohirealestate.co.jp(★を@に差し替えてください)
ファクス 050-3145-2836









